List Price  $99,000

1.14 acres

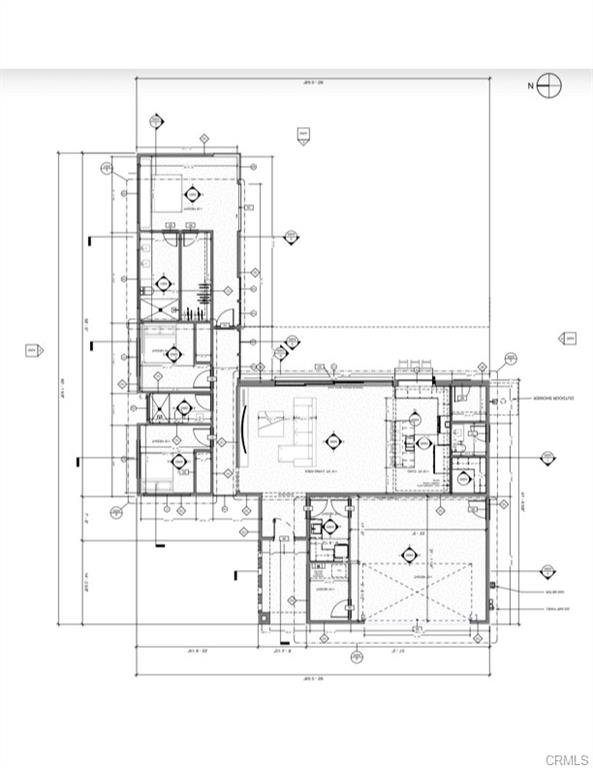
Pristine 1.14-Acre Hillside Parcel: Located in Upper Friendly Hills with water and electric in the street. Walking distance to the Nature Preserve and only a short distance further to Joshua Tree National Park. Commanding views of both the Basin below and the ridgelines of the Park above. Architectural Plans & Structural Design Report has been completed and simply need to be submitted to County for approval. Contact agent for plans and supplements. APN: 0588-252-08